Windows
Casement Windows
Awning Windows
Picture / Direct Set Windows
Double / Single Hung Windows
Bow, Bay, & Corner Windows
Specialty Windows
Doors
Swinging Terrace Doors (2.25″)
Swinging Terrace Doors (1.75″)
Swinging French Doors (2.25″)
Swinging French Doors (1.75″)
Sliding Patio Doors
BiFold Doors
LiftSlide Doors
MultiSlide Doors
Product Features
SDL Bars & Glazing Stops
Casings & Sill Noses
Jamb Extensions
Mulling
Masonry Openings
Curtain Wall
Cyprium Collection
StormForce Series
Performance Data
Air, Water, Structural, Performance
NFRC Ratings
Passive House
CAD & 3D
CAD Drawings
3D Models
Installation & Maintenance
Product Configurator
Architectural Services
Loewen.com
Curtain Wall
Peakhead
Inserted CA & TD
Inserted Pivot Door
Inserted LiftSlide Door
Product Configurator
ADDITIONAL RESOURCES
Use the buttons below to view additional technical drawings, models, and performance data, or keep scrolling.
CAD Drawings
View Resources
NFRC Ratings
View Resources
Basics
Download
Timber Connector System
Download
Metal Clad Exterior
Download
All Wood Exterior
Download
Casement Insert
Download
Terrace Door Insert
Download
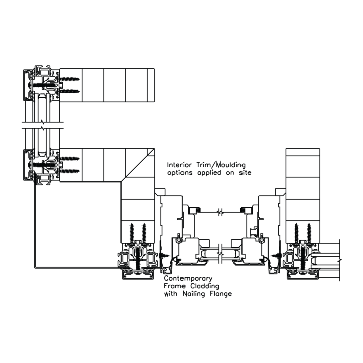
Corner Detail
Download
Mitered Post Corner
Download
Butt Glazed Corner
02 - Peakhead
Peakhead Curtain Wall
Download
Typical Peakhead Elevation
03 - Casement & Terrace Door
Curtain Wall w/ Casement & Terrace Door
Download
CW w/ CA & TD - Elevation
Download
CW w/ CA & TD - Head & Sill
Download
CW w/ CA & TD - Plan View
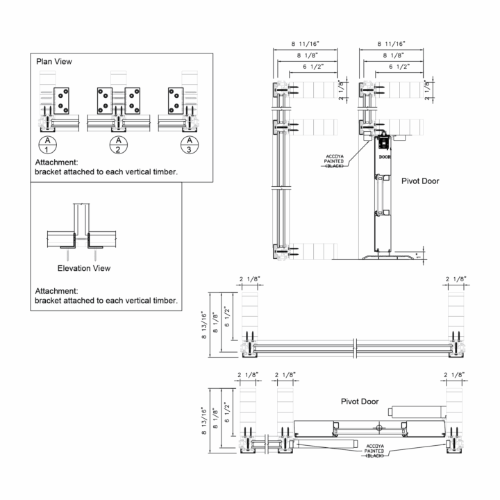
04 - Pivot Door
Curtain Wall w/ Pivot Door
Download
Curtain Wall w/ Pivot Door - Elevation
Download
Curtain Wall w/ Pivot Door - Details
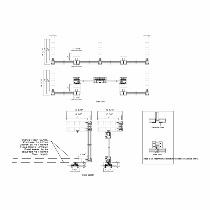
05 - LiftSlide Door
Curtain Wall w/ LiftSlide Door
Download
OX-XO LS w/ Transom - Elevation
Download
OX-XO LS w/ Transom - Details
Download
OX LiftSlide - Elevation
Download
OX LiftSlide - Details
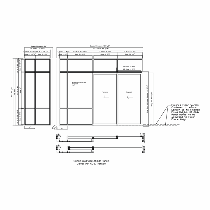
Download
Corner Curtain Wall w/ XO LiftSlide & Transom - Elevation
Download
Corner Curtain Wall w/ XO LiftSlide & Transom - Details