Looking for Loewen standard sizes? Our Product Configurator allows you to browse our standard sizes and make configurations.
CAD Drawings
View Resources3D Models
View ResourcesNFRC Ratings
View ResourcesAir, Water, Structural Performance
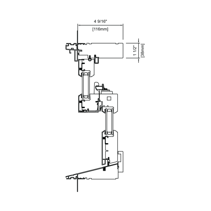
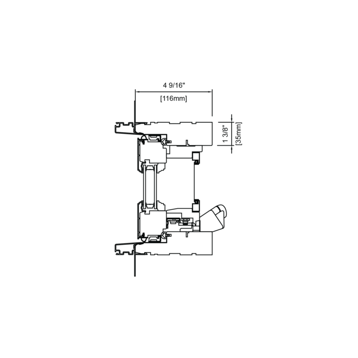
View ResourcesOur standard 4-9/16″ jamb can be cut down to achieve a shallower 4″ jamb, this is often used in drywall-return installations.
The location of the nailing flange on our Contemporary frame automatically creates a 4″ jamb, it’s important to note that an extension is used to achieve a 4-9/16″ jamb in this case.
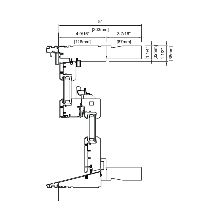
The larger of our two main jamb sizes, 6-9/16″ (166mm) jambs are available as full jambs on our Terrace Doors.
Our windows will use one of our extensions to achieve a 6-9/16″ jamb size.





























