Looking for Loewen standard sizes? Our Product Configurator allows you to browse our standard sizes and make configurations.
CAD Drawings
View Resources3D Models
View ResourcesNFRC Ratings
View ResourcesAir, Water, Structural Performance
View Resources| Stacking | Pocketed |
|---|---|
| OXX | PXX |
| OXXX | PXXX |
| OXXXX | PXXX |
|
OXXXXXXX |
PXXXXXXXX |
| OX – XO | PXX – XXP |
| OXX – XXO |
PXXX – XXXP |
|
OXXX – XXXO |
PXXXX – XXXXP |
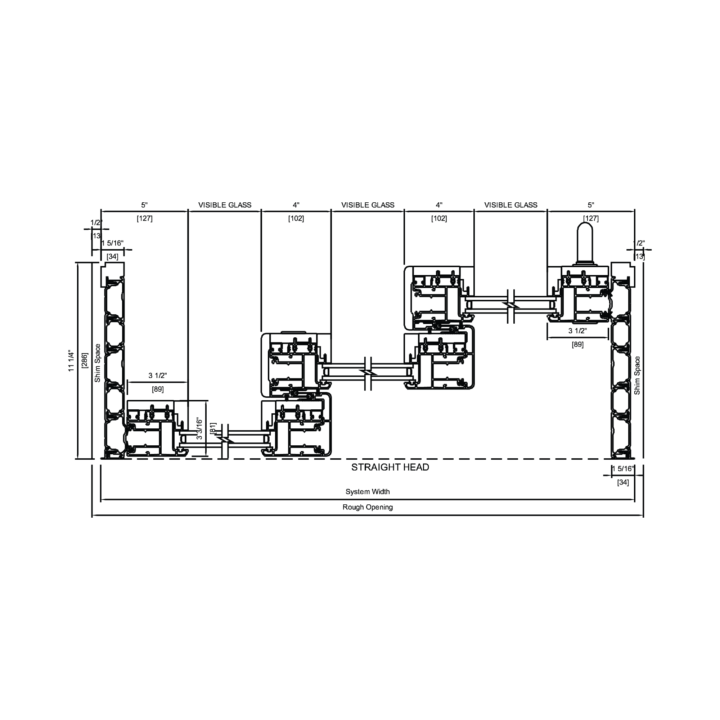
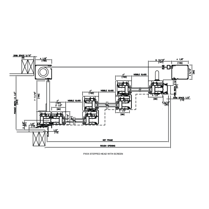
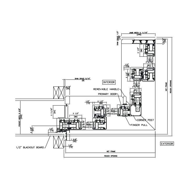
X = Operating O = Fixed P = Pocket
The preparation of the rough opening for large openings such as those required by, but not limited to LiftSlide, BiFold and MultiSlide doors have unique requirments. Structural headers that allow for deletion no greater than 1/8″ along the unsupported length one the header is fully loaded are required. Special care needs to be taken when installing any unit including transoms above such large opening units. Loewen is not responsible for site measurements or the determination of structural and architectural requirements for the installation of large opening products such as but not limited to LiftSlide, BiFold and MultiSlide doors. Site specifications are the responsibility of building professionals or engineers to determine.
| Rough Opening (3′ Panels) | Head Width (3′ Panels, No Screens) | Finish Pocket Width | Rough Opening (4′ Panels) | Head Width (4′ Panels, No Screens) | Finish Pocket Width | ||||
|---|---|---|---|---|---|---|---|---|---|
| Panels | Configuration | Style | Frame Type | X | |||||
| 2 | OX OR XO | STACKING | JAMB | 73 [1854] | 7 7/16 [189] | – | 97 [2464] | 7 7/16 [189] | – |
| 3 | OXX OR XXO | STACKING | JAMB | 106 [2692] | 11 1/4 [286] | – | 142 [3617] | 11 1/4 [286] | – |
| 4 | OXXX OR XXXO | STACKING | JAMB | 139 [3531] | 15 1/8 [384] | – | 187 [4750] | 15 1/8 [384] | – |
| 5 | OXXXX OR XXXXO | STACKING | JAMB | 172 [4369] | 19 [483] | – | 231 [5863] | 19 [483] | – |
| 6 | OXXXXX OR XXXXXO | STACKING | JAMB | 205 [5207] | 22 13/16 [579] | – | 277 [7036] | 22 13/16 [579] | – |
| 4 | OXX-XXO | BI-PARTING | JAMB | 142 3/16 [3612] | 7 7/16 [189] | – | 190 3/16 [4831] | 7 7/16 [189] | – |
| 6 | OXXX-XXXO | BI-PARTING | JAMB | 208 3/16 [5288] | 11 1/4 [286] | – | 280 3/16 [7117] | 11 1/4 [286] | – |
| 8 | OXXXX-XXXXO | BI-PARTING | JAMB | 274 3/16 [6964] | 15 1/8 [384] | – | 370 3/16 [9401] | 15 1/8 [384] | – |
| 10 | OXXXXX-XXXXXO | BI-PARTING | JAMB | 340 3/16 [8641] | 19 [483] | – | 460 3/16 [11689] | 19 [483] | – |
| 12 | OXXXXXX-XXXXXXO | BI-PARTING | JAMB | 406 3/16 [10317] | 22 13/16 [579] | – | 549 13/16 [13975] | 22 13/16 [579] | – |
| 1 | PX OR XP | STACKING | SINGLE POCKET | 73 [1854] | 7 7/16 [189] | 7 7/16 [189] | 97 [2464] | 7 7/16 [189] | 7 7/16 [189] |
| 2 | PXX OR XXP | STACKING | SINGLE POCKET | 106 [2692] | 11 1/4 [286] | 11 1/4 [286] | 142 [3617] | 11 1/4 [286] | 11 1/4 [286] |
| 3 | PXXX OR XXXXP | STACKING | SINGLE POCKET | 139 [3532] | 15 1/16 [384] | 15 1/16 [384] | 187 [4754] | 15 1/16 [384] | 15 1/16 [384] |
| 4 | PXXXX OR XXXXXP | STACKING | SINGLE POCKET | 171 [4344] | 19 [483] | 19 [483] | 231 [5868] | 19 [483] | 19 [483] |
| 5 | PXXXXX OR XXXXXXP | STACKING | SINGLE POCKET | 204 [5196] | 22 13/16 [579] | 22 13/16 [579] | 276 [7016] | 22 13/16 [579] | 22 13/16 [579] |
| 6 | PXXXXXX OR XXXXXX | STACKING | SINGLE POCKET | 237 [6028] | 26 9/16 [675] | 26 9/16 [675] | 324 [8224] | 26 9/16 [675] | 26 9/16 [675] |
| 2 | PX-XP | BI-PARTING | DUAL POCKET | 75 1/2 [1918] | – | 7 7/16 [189] | 99 1/2 [2528] | – | 7 7/16 [189] |
| 4 | PXX-XXP | BI-PARTING | DUAL POCKET | 140 [3554] | – | 11 1/4 [286] | 188 [4773] | – | 11 1/4 [286] |
| 6 | PXXX-XXXP | BI-PARTING | DUAL POCKET | 205 [5211] | – | 15 1/16 [384] | 278 [7099] | – | 15 1/16 [384] |
| 8 | PXXXX-XXXXP | BI-PARTING | DUAL POCKET | 270 1/2 [6872] | – | 19 [483] | 368 [9355] | – | 19 [483] |
| 10 | PXXXXX-XXXXXP | BI-PARTING | DUAL POCKET | 335 1/2 [8512] | – | 22 13/16 [579] | 457 [11609] | – | 22 13/16 [579] |
| 12 | PXXXXXX-XXXXXXP | BI-PARTING | DUAL POCKET | 405 1/2 [10300] | – | 24 9/16 [624] | 549 12/16 [13957] | – | 24 9/16 [624] |
Additional configurations and sizes available. Consult your Authorized Loewen Dealer for details.
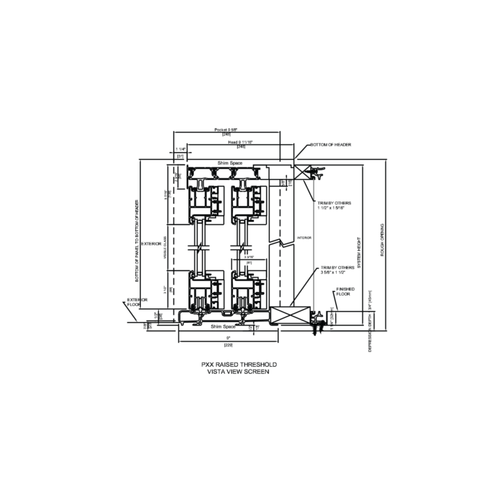
| Panel Height | Rough Opening Height (1″ Flush Track) | Rough Opening Height (1 1/2″ Flush Track) | Rough Opening Height (Raised Threshold) |
|---|---|---|---|
| 84 [2134] | 87 15/16 [2234] | 88 7/16 [2246] | 88 7/16 [2246] |
| 96 [2438] | 99 1516 [2538] | 100 7/16 [2551] | 100 7716 [2551] |
| 108 [2743] | 111 15/16 [2843] | 112 7/16 [2856] | 112 7/16 [2856] |
| 120 [3048] | 123 15/16 [3148] | 124 7/16 [3161] | 124 7/16 [3161] |
| 144 [3658] | 147 15/16 [3758] | 148 7/16 [3770] | 148 7/16 [3770] |
Additional heights available. Consult your Authorized Loewen Dealer for details.
Note:
O = Fixed
X = Operating
P = Pocketing
The preparation of the rough opening for large openings such as those required by, but not limited to, LiftSlide and Bifold doors have unique requirements. Structural headers that allow for deflection no greater than 1/8″ along the unsupported length once the header is fully loaded are required. Special care needs to be taken when installing any unit including transoms above such large opening units.
Loewen is not responsible for site measurements or the determination of structural and architectural requirements for the installation of large opening products such as but not limited to, Liftslide and bifold doors. Site specitications are the responsibility of building professionals or engineers to determine.












