Looking for Loewen standard sizes? Our Product Configurator allows you to browse our standard sizes and make configurations.
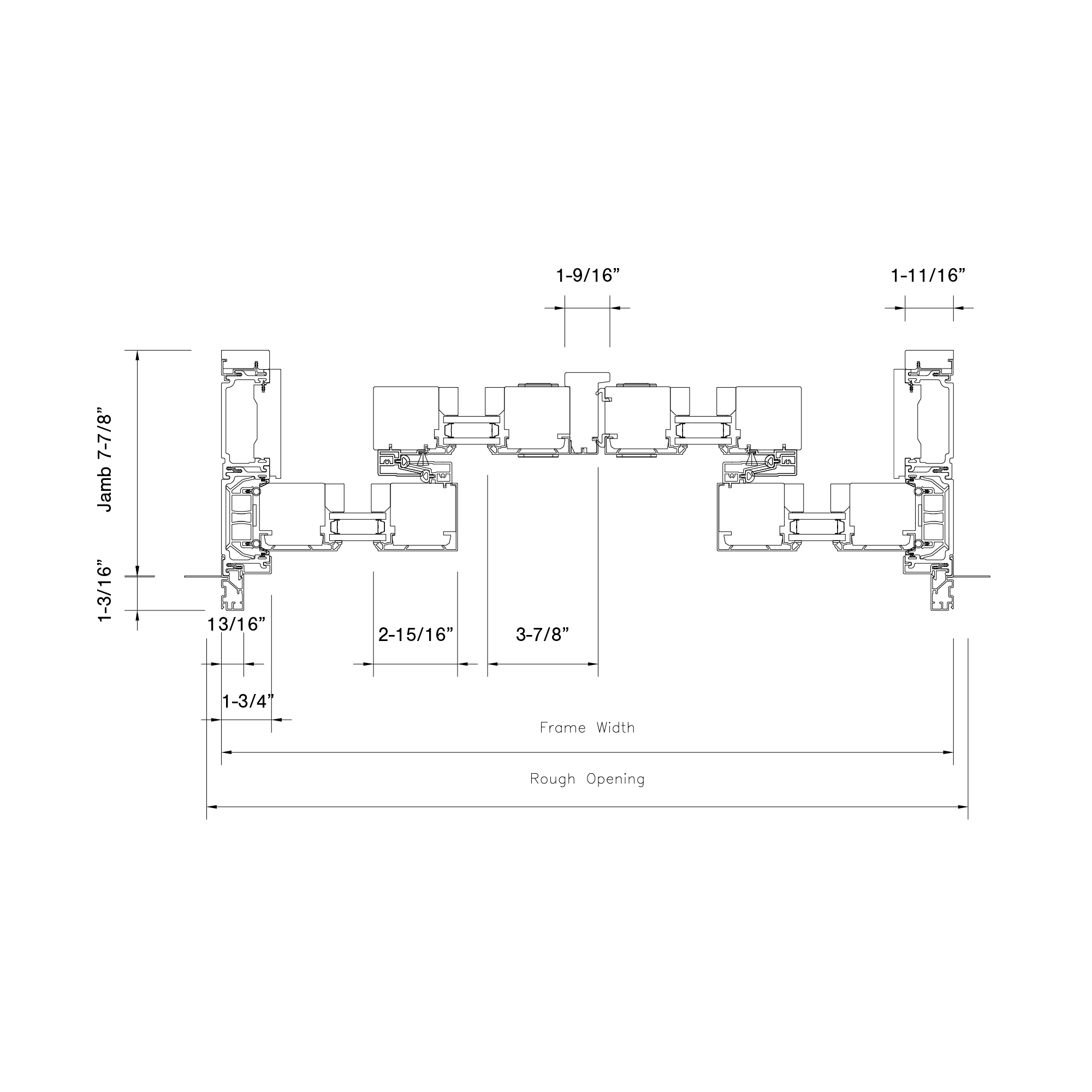
CAD Drawings
View Resources3D Models
View ResourcesNFRC Ratings
View ResourcesAir, Water, Structural Performance
View Resources| Stacking | Pocketed | Corner |
|---|---|---|
| OXX | PXX | OXX+XXO |
| OXXX | PXXX | OXX+XXXP |
| OXXXX | PXXX | PXXX+XXXP |
|
OXXXXXXX |
PXXXXXXXX |
|
| OX – XO | PXX – XXP | |
| OXX – XXO |
PXXX – XXXP |
|
|
OXXX – XXXO |
PXXXX – XXXXP |
X = Operating O = Fixed P = Pocket
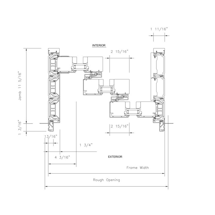
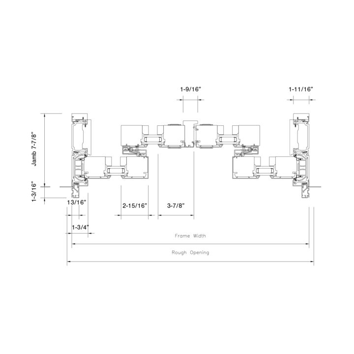
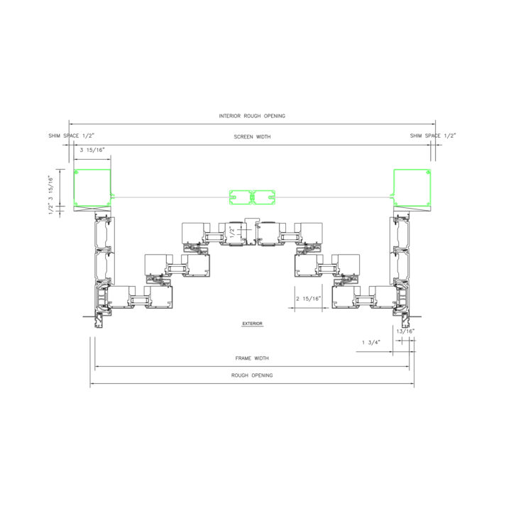
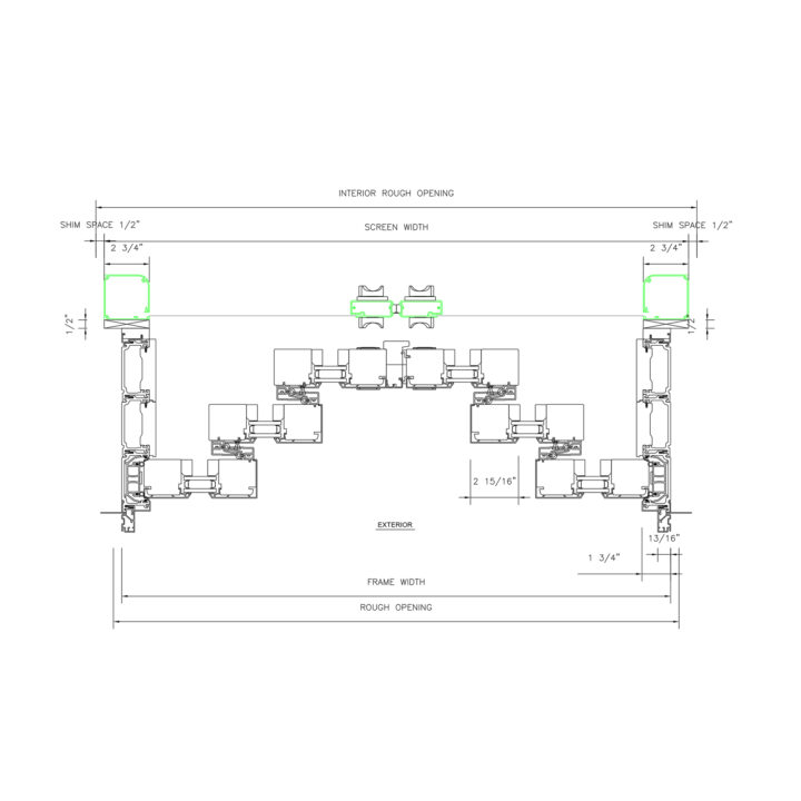
The preparation of the rough opening for large openings such as those required by, but not limited to LiftSlide, BiFold and MultiSlide doors have unique requirments. Structural headers that allow for deletion no greater than 1/8″ along the unsupported length one the header is fully loaded are required. Special care needs to be taken when installing any unit including transoms above such large opening units. Loewen is not responsible for site measurements or the determination of structural and architectural requirements for the installation of large opening products such as but not limited to LiftSlide, BiFold and MultiSlide doors. Site specifications are the responsibility of building professionals or engineers to determine.
Our standard sizes go up to panel sizes of 6 feet by 12 feet, or an overall system width up to 48 feet.
Size has an impact on performance values available.





















































