Looking for Loewen standard sizes? Our Product Configurator allows you to browse our standard sizes and make configurations.
CAD Drawings
View Resources3D Models
View ResourcesNFRC Ratings
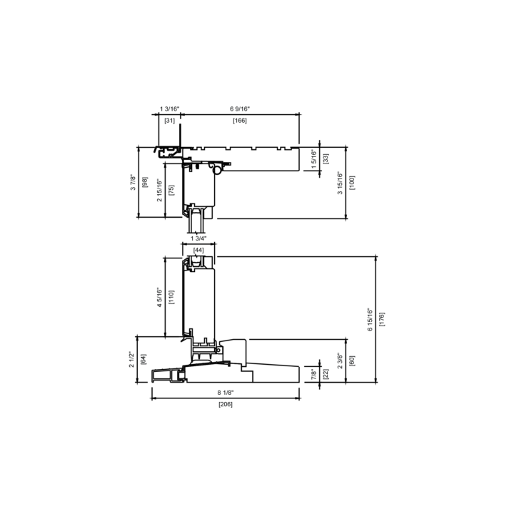
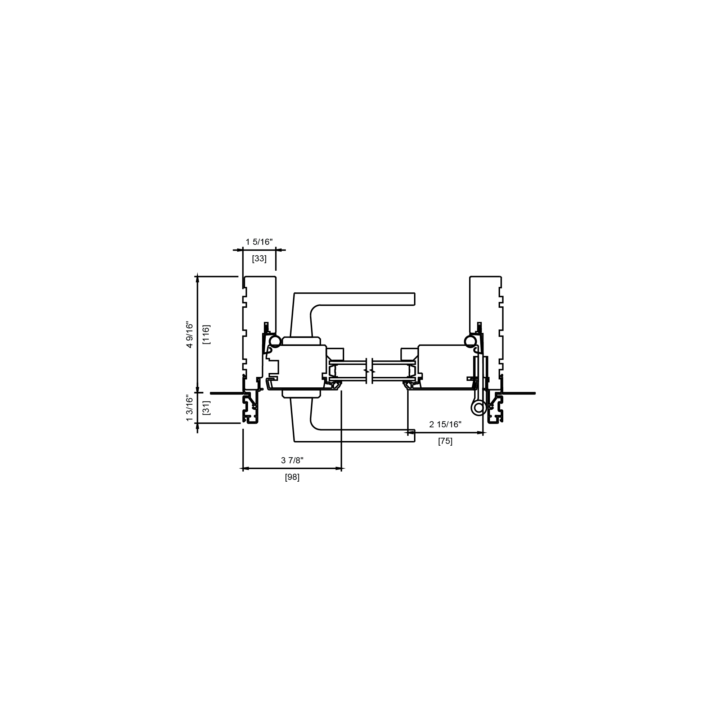
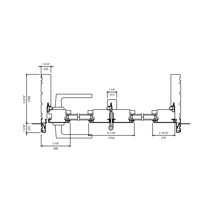
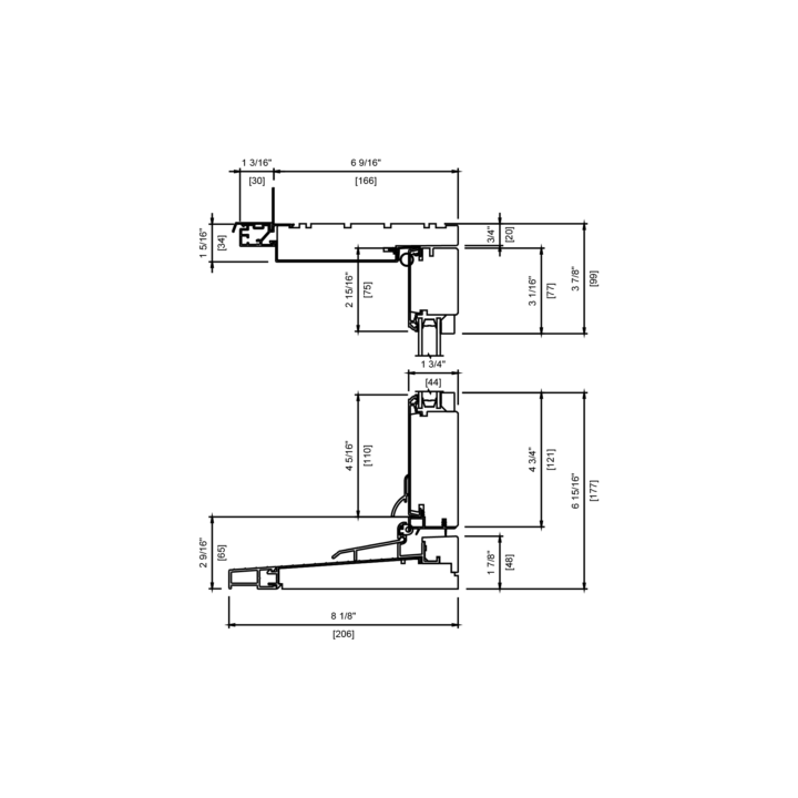
View ResourcesAir, Water, Structural Performance
View ResourcesRectangular (or Square)
Camber Top Full
Half-Round
Camber Top – Left
Camber Top – Right
Quarter Round – Left
Quarter Round – Right
Rectangular (or Square)
Camber Top Full
Half-Round
Rectangular (or Square)
Camber Top Full
Rectangular (or Square)
Camber Top Full
Narrow stile & rail option includes 3” vertical stile & top rail, and 4-5/16″ bottom rail.
Standard stile & rail option includes 4-5/16″ vertical stile & top rail, and 7-7/8″ bottom rail.
Middle rail options can include a bottom flat panel, a bottom raised panel, or a bottom sealed unit.
Panels with a middle rail and a vertical rail can include two bottom flat panels or two bottom raised panels.
All options shown here apply to metal-clad doors and all-wood doors.






All examples shown are 36-3/8″ x 94-1/2″ frame size.












The “handing” designation always assumes an exterior to interior viewing angle. Looking from the exterior, if the hinge is on the left it is left-handed, if the hinge is on the right it is right-handed. One and two panel examples included, three and four panels in a single frame are available.



























































